Back to Journal

Woah Nelly!

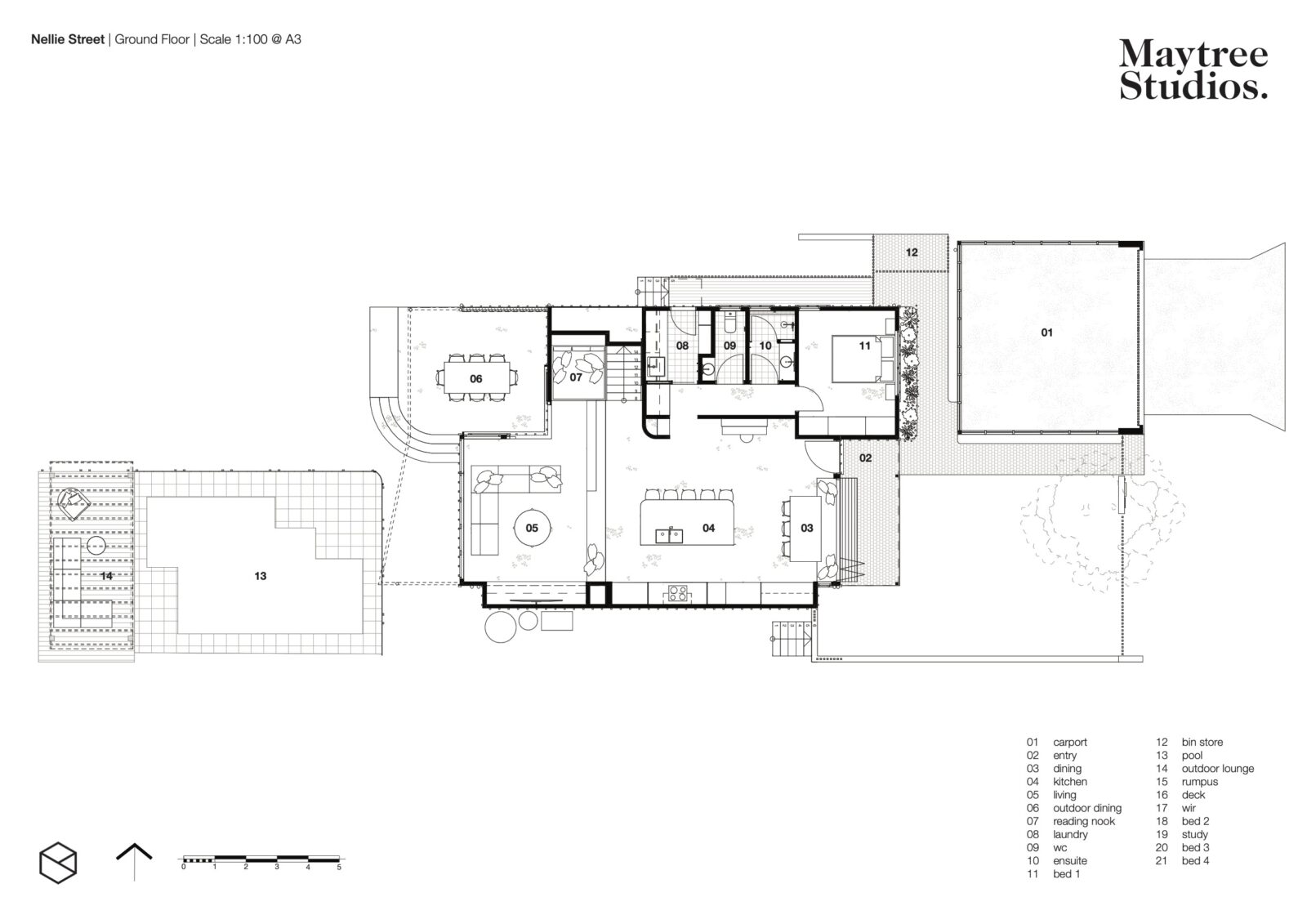
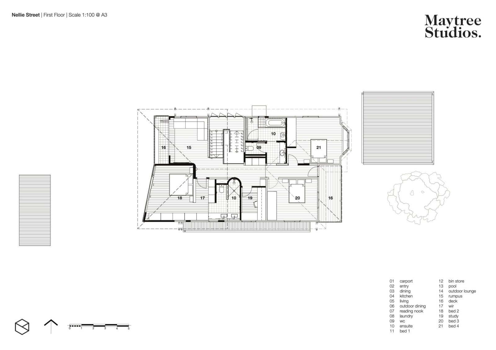
Woah Nelly! reimagines a classic post-war Queenslander for a young family committed to staying in Camp Hill. The renovation restores the home to its original footprint before lifting and building underneath, creating new living space while preserving its heritage character.

Respecting the house’s history while planning for modern family life, the design shifts the home south to increase privacy, capture northern light and frame city and pool views. A green spine of kitchen and living spaces runs front to back, visually connecting street and garden. A generous front window seat engages with the neighbourhood, while at the rear, seamless indoor-outdoor living embraces the backyard.

The result is a light-filled, connected home that honours its past while supporting a vibrant family future.

Photography by Jack Gibson.

Contact

Find our Brisbane & Sunshine Coast Architects
7 Fagan Road
Herston QLD 4006

7/80-82 Sixth Ave
Maroochydore QLD 4558

Stay connected - one email, quarterly.

Get in touch

To find out if we’re a good match, fill out the below form and we will be in touch.

"(Required)" indicates required fields

We respect your privacy