Back to Projects

Offset House

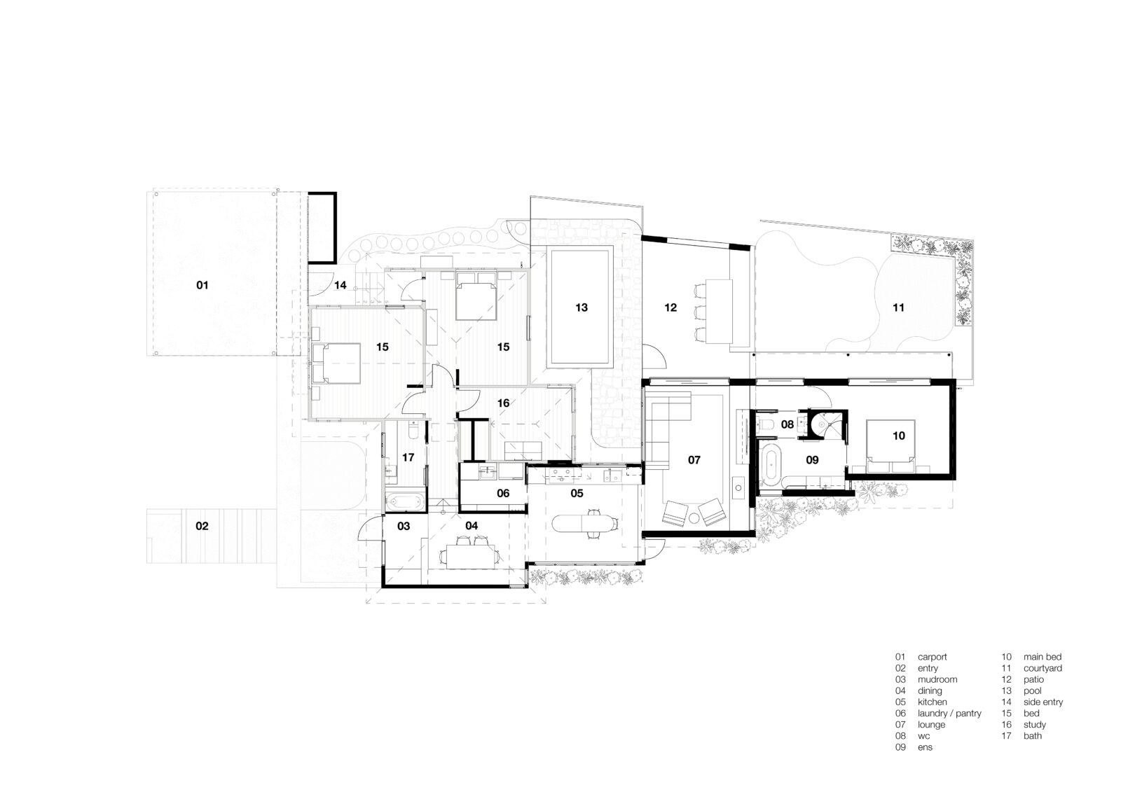
In a suburb where modest timber cottages are often lost to demolition, Offset House demonstrates the potential of adaptive reuse. What began as a humble 1940s weatherboard cottage has been reconfigured into a compact bedroom wing, with a stepped contemporary extension unfolding behind to meet the needs of this growing family.

Negotiating a sloping site and angled boundary, the new volumes offset in plan, their interstitial glass panels framing views of garden and light. This sequencing fosters connection and enhances passive performance – maximising northern light and cross-ventilation for a home that is environmentally attuned and experientially rich.

Earthy tones wrap the original cottage, while crisp white volumes signal the new. Inside, layers of timber and marble, with nik-naks, art and books all adding warmth and narrative.

Offset House proves preservation and modernisation can coexist, offering a sustainable model for suburban living rooted in context and character.

  • Location

    Yuggera & Turrbal Country
    Annerley, Brisbane

  • Year completed

    2024

  • Builder

    Eclat Building Company

  • Photographer

    Toby Scott

  • Landscape Designer

    Greencare Project

  • Landscape Installer

    Edenscapes

Contact

Find our Brisbane & Sunshine Coast Architects
7 Fagan Road
Herston QLD 4006

7/80-82 Sixth Ave
Maroochydore QLD 4558

Stay connected - one email, quarterly.

Get in touch

To find out if we’re a good match, fill out the below form and we will be in touch.

"(Required)" indicates required fields

We respect your privacy