Back to Projects

Tighty Whitey House

Set on a steep, compact site in inner-city Brisbane, the project challenges conventional notions of scale, privacy, and density, offering intelligent and stylish solutions for contemporary family living.

The original workers’ cottage is retained and restored, sitting confidently at the street’s edge with a kerbside garden and low fence that foster neighbourly interaction. A new side entry allows the cottage to function as a private retreat, with guests guided along a garden path to the social heart of the home located at the rear.

The home is thoughtfully scaled to support both family life and entertaining, while subtly increasing density to provide the space the family needs.

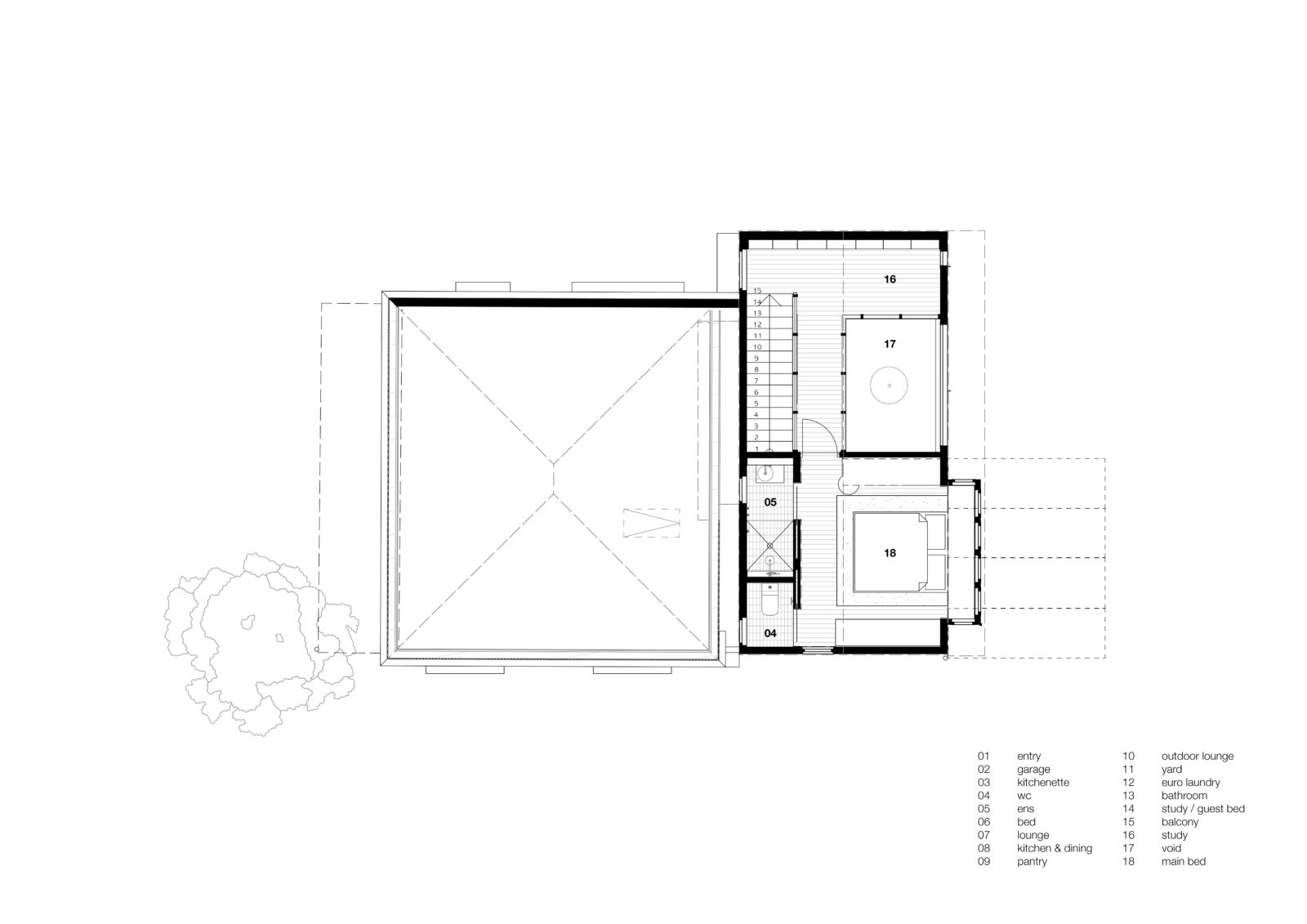
Internally, the reconfigured cottage accommodates three secondary bedrooms, while car parking and a granny flat are discretely tucked beneath. A contemporary rear addition is the heart of the home, housing the kitchen and living areas, embracing verticality over excess. A lofted parents’ retreat sits above, with custom joinery and layered spatial planning ensuring each space feels both generous and purposeful.

A northeast-facing courtyard extends the living area outdoors, offering flexible shade and privacy through considered landscape design and green boundaries which soften the urban edge while framing curated views.

Tighty Whitey demonstrates how clever, context-responsive architecture can support family life, foster community connection, and make the most of every square metre.

  • Location

    Yuggera & Turrbal Country
    Kelvin Grove

  • Year Completed

    2024

  • Published

    The Design Files

  • Awards

    2025 Shortlist Houses Awards

  • Builder

    Petro Builders

  • Photography

    Toby Scott

  • Landscape Designer

    Greencare

  • Landscape Install

    Edenscapes

"The Maytree team approached the design process with creativity and practicality. They didn’t just deliver a beautiful design—they delivered a home that works perfectly for us. Every space feels intentional, with natural light, airflow, and connection to the outdoors playing a central role. The end result is a home that not only looks amazing, is a pleasure to live in but feels like “us.” It’s a space that brings joy every day."

Contact

Find our Brisbane & Sunshine Coast Architects
7 Fagan Road
Herston QLD 4006

7/80-82 Sixth Ave
Maroochydore QLD 4558

Stay connected - one email, quarterly.

Get in touch

To find out if we’re a good match, fill out the below form and we will be in touch.

"(Required)" indicates required fields

We respect your privacy