Back

Canal Home Design on the Sunshine Coast – A Case Study

This case study looks at a small, narrow, canal facing home & the strategies we employed to design a light, vibrant & liveable home!

When Stephanie and Luke reached out to us to design their canal home on the Sunshine Coast, they wanted to build a property that had something special about it. Planning to move from this waterfront location in years to come, they asked us to design a home that would appeal to other young families like theirs, provide something unique but not over capitalise. It had to have four bedrooms, alfresco living and a pool, a media room, three bathrooms and a double garage. All on a small, narrow block that is just 306m2.

Life on the waterfront is finely attuned to the outdoors, so connecting with the location was an important element of this home. An internal courtyard brings lights into the centre of the home, while cropped sightlines direct views away from neighbours and out to the surrounding landscape and water. Finally, a large outdoor dining area connected to the internal living zone further strengthens the family’s connection with the relaxed location.

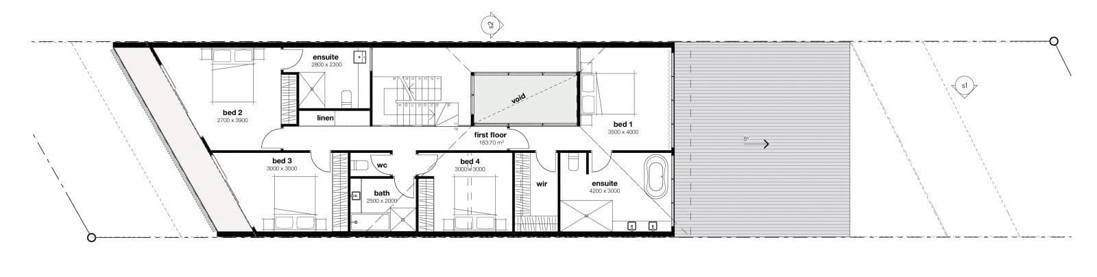
Zero lot homes typically have some dark, compromised rooms.  Our design worked hard to bring light in through a central courtyard open to the sky.  Playing with the compression of tall narrow hallways opening up to generous double height volumes creates drama and playfulness in the this loft style home.  The approach to ‘go small to go big’ worked wonders in this project – by reducing the footprint slightly, Steph and Luke could afford to build a more complex home that provides great natural day light and ventilation to every room, reducing running costs, improving liveability and creating a fun, vibrant and unique home.  

Our Top Tips for Canal Home Design:

1. Go small to go large

2. Organise your home around a single, strong circulation axis

3. Find ways to bring the light in from the top

4. Just facing out to the water is not enough

5. Integrate good environmental design

1. Go small to go large

Challenge the spaces you think you need, to really ensure your home is working hard.  Lots of people end up with ‘dead space’ in their homes.  A vibrant, well thought out home is well utilised in every corner.  The best part of this is that by reducing your total floor area you can spend money on the things that really make a home special – quality fittings, finishes & architectural features.

2. Organise your home around a single, strong circulation axis

Keep it simple!  Small homes should have a simple organisational axis which everything in the home feeds off.  You don’t want guest to arrive & feel unsure of where to go next.  Think about what you see from the entry door and point of arrival – it should be light, inviting & draw you into the home.  For Steph & Luke, from the large front door, you see all the way to the water at the rear of the home.

3. Find ways to bring the light in from the top

If you’re home is on a tight site, consider a roof window, skylight or lightwell/courtyard, to bring light from the top all the way to your ground level.  A courtyard doesn’t need to be big – Steph & Luke’s is only 1.8×2.4 but it brings a serious amount of daylight into their home all year round!

4. Just facing out to the water is not enough

Water views are great – they’re calming, catch the light & with a steady flow of paddle boarders, quite often social spaces.  But they’re not the only space.  East & West facing canal homes can create uncomfortable glare and you’re usually facing into your neighbour’s house 20-50 metres away!  Think about the spaces you can create on the sides and edges of your home.  Better yet, consider wrapping your home in a courtyard like formation around a protected and private space.  Consider where your North-Eastern aspect is, and find a way to open your home up to this.  It doesn’t mean you can’t enjoy your canal view, it just means you can curate that view & find ways to enjoy it from a private, protected vantage point.

5. Integrate good environmental design

Whether your home is a small home or not, the energy requirements for a modern home are high.  Between air conditioning and pool heating, it can really add up.  First principles of good environmental design are passive.  Create ways for air to move through the home (if it can’t get out, it won’t come in!), open the home up to the cooling north-easterly, orient openings to the sun to ensure a naturally lit home all day, and consider shade and insulation to your walls to keep the home naturally cool.  After this, start adding your next layers – solar power, battery backup, grey water reuse and water tanks.  Good environmental design isn’t rocket science, but it will make an enormous difference to how much you enjoy your home!

Want to learn more about getting your perfect Canal Home?

 

Make a time to chat with one of our team here!

Keep up to date with one email every quarter!

Want to dip your toe in the water to see if we are the design team for you? Your first meeting is complimentary, so you can get to know us without any further obligation. Complete the form to start a conversation or book a time that suits you for a call back. 






    Find our Brisbane Architects
    Shop 3, 475 Sandgate Rd
    Albion QLD 4010
    (parking at rear, off Highlands St)